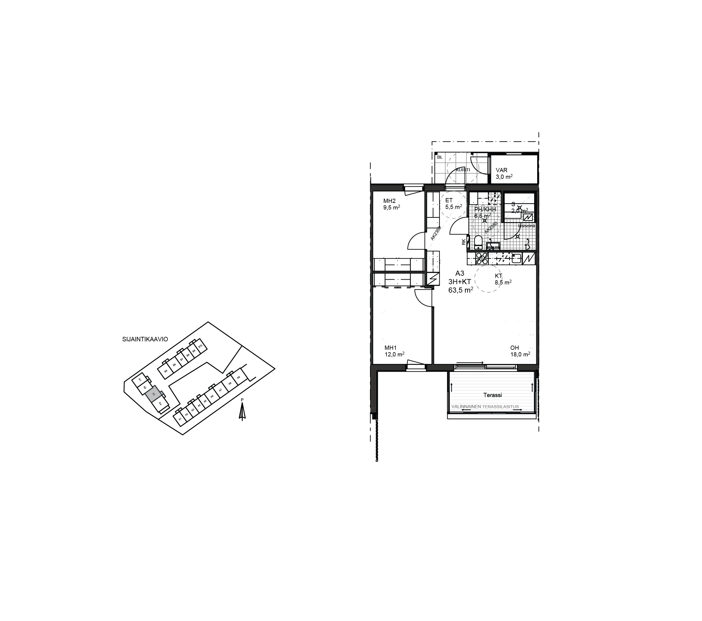
A3

Holvastin Liinakko A3

Rivitalo | Pinta-ala 63,5 m² | 3 h + kt + s

VH: 284 000 € | MH: 145 331,88 €

Katso kuvia Ota yhteyttä

Asunnot ovat valoisia ja tehokkaasti suunniteltuja, ja pohjaratkaisut on mietitty tarkasti, jotta ne tarjoavat erinomaisen asumismukavuuden. Jokainen koti on varustettu nykyaikaisin mukavuuksin, ja tilat tarjoavat mahdollisuuksia niin arjen askareisiin kuin rentoutumiseen. Oma terassi ja piha-alue luovat täydelliset puitteet perheen oleskeluun ja puuhasteluun myös ulkotiloissa.

Ihanan arjen ympäristö

Holvasti on tunnettu perheystävällisyydestään ja vehreästä ympäristöstään. Upeat ulkoilumahdollisuudet, puistot ja metsät tekevät tästä paikasta täydellisen kodin luonnon ystäville. Monipuoliset päivittäispalvelut, kuten kaupat, koulut ja päiväkodit, ovat vain kivenheiton päässä. Tampereen keskustaan on nopea yhteys sekä autolla että julkisilla kulkuvälineillä. Voit nauttia rauhallisesta elämästä, mutta silti olla lähellä kaupungin sykettä.

Varaa esittelyaika tontilla