Modernin asumisen vaivattomuus ja vehreä ympäristö

Uudet, modernit kodit tarjoavat täydellisen yhdistelmän laatua, viihtyisyyttä ja energiatehokkuutta. Valoisat ja tarkoin suunnitellut asunnot takaavat asumismukavuuden, ja oma tontti sekä maalämpö pitävät asumiskustannukset edullisina. Suojaisa pihapiiri luo kylämäistä tunnelmaa, ja loistavat yhteydet takaavat helpon arjen. Holvastin vehreä ympäristö ja monipuoliset palvelut tekevät tästä asuinalueesta täydellisen paikan kodille.

Avarat ja valoisat asunnot

Asunnot ovat valoisia ja tehokkaasti suunniteltuja, ja pohjaratkaisut on mietitty tarkasti, jotta ne tarjoavat erinomaisen asumismukavuuden. Jokainen koti on varustettu nykyaikaisin mukavuuksin, ja tilat tarjoavat mahdollisuuksia niin arjen askareisiin kuin rentoutumiseen.

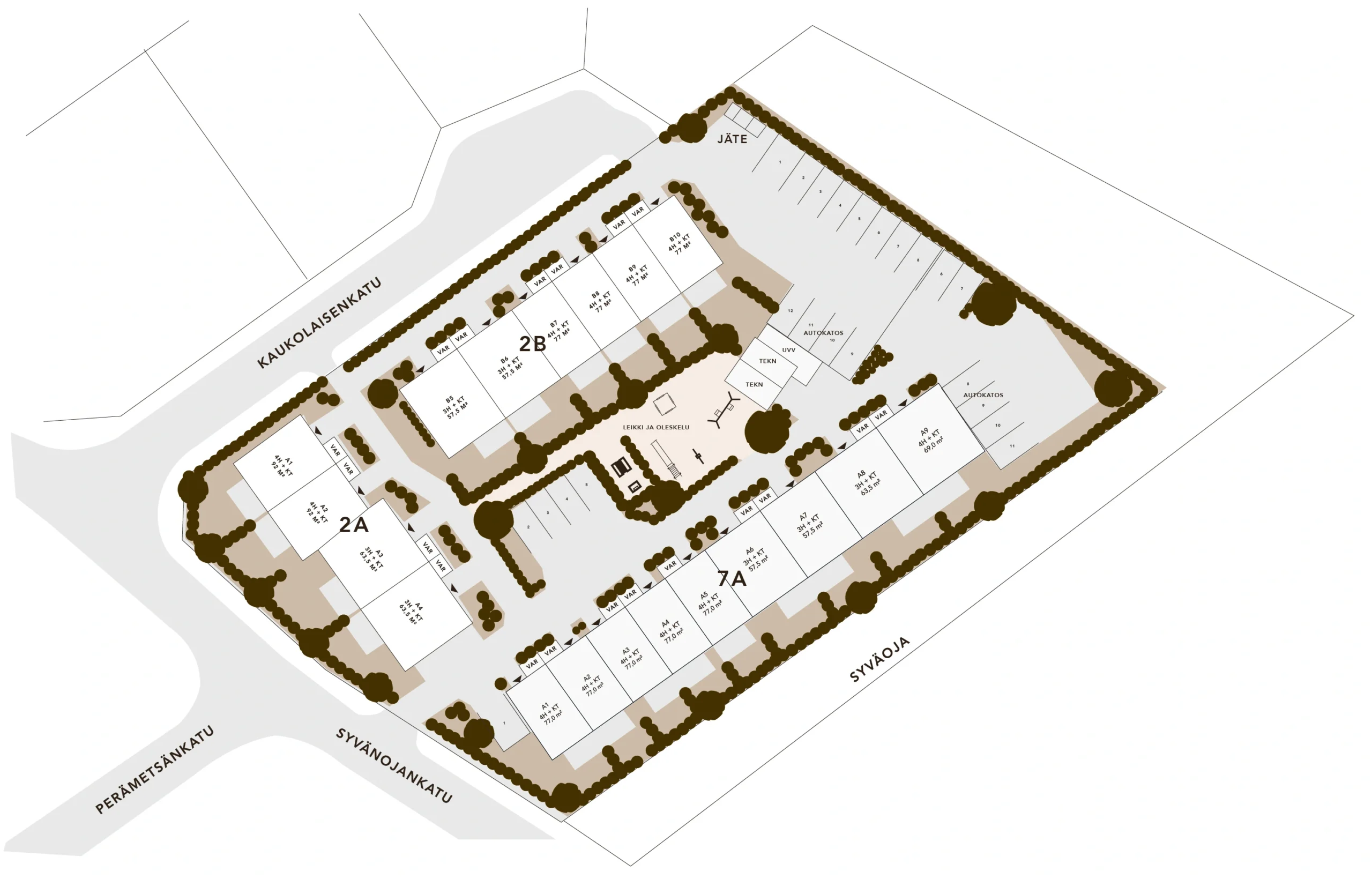
Holvasti asemakaava

Kylämäinen ja moderni pihapiiri

Rakennukset ovat ilmeeltään modernin tyylikkäitä, mutta silti lämpimiä ja kodikkaita, tuoden mieleen perinteisen kylätunnelman. Harjakatot ja suuret ikkunat antavat rakennuksille avaran ja valoisan ilmeen, ja liukulasiratkaisut olohuoneissa luovat yhteyden ympäröivään luontoon. Tontin reunoille sijoittuvat rakennukset rajaavat suojaisan ja viihtyisän leikki- ja oleskelupihan, joka kutsuu asukkaita yhteiseen ajanviettoon turvallisessa ympäristössä.

Oma tontti ja edullinen asuminen

Tontti sisältyy asunnon hintaan, joten asumiskustannukset ovat kohtuulliset ja taloyhtiön hoitomaksut pysyvät edullisina – tämä mahdollistaa taloudellisesti kevyen ja stressittömän asumisen. Taloyhtiö lämpiää maalämmöllä. Jokaisessa huoneistossa on oma ilmalämpöpumppu tuomassa viilennystä lämpimiin kesäpäiviin.

Loistavat yhteydet ja palvelut

Holvasti on tunnettu perheystävällisyydestään ja vehreästä ympäristöstään. Upeat ulkoilumahdollisuudet, puistot ja metsät tekevät tästä paikasta täydellisen kodin luonnon ystäville. Monipuoliset päivittäispalvelut, kuten kaupat, koulut ja päiväkodit, ovat vain kivenheiton päässä. Tampereen keskustaan on nopea yhteys sekä autolla että julkisilla kulkuvälineillä. Voit nauttia rauhallisesta elämästä, mutta silti olla lähellä kaupungin sykettä.

Laadukas rakentaminen

Talo on rakennettu kestävillä ja energiatehokkailla materiaaleilla, ja asuntojen varustelutaso on huippuluokkaa – viihtyisyys ja käytännöllisyys samassa paketissa. Laadukkaat ja ajattomat materiaalivalinnat kestävät aikaa ja elämää.

Varaa esittelyaika tontilla